This exceptional penthouse is situated in the sought-after area of Upper Riviera del Sol, Mijas Costa, Malaga, nestled conveniently between Calanova Golf and Miraflores Golf. Offering easy access to the AP7 motorway, the property provides seamless connections to both Malaga and Marbella, making it an ideal location for those seeking both tranquillity and accessibility. This dwelling is a rare opportunity in a prestigious, fully gated community.
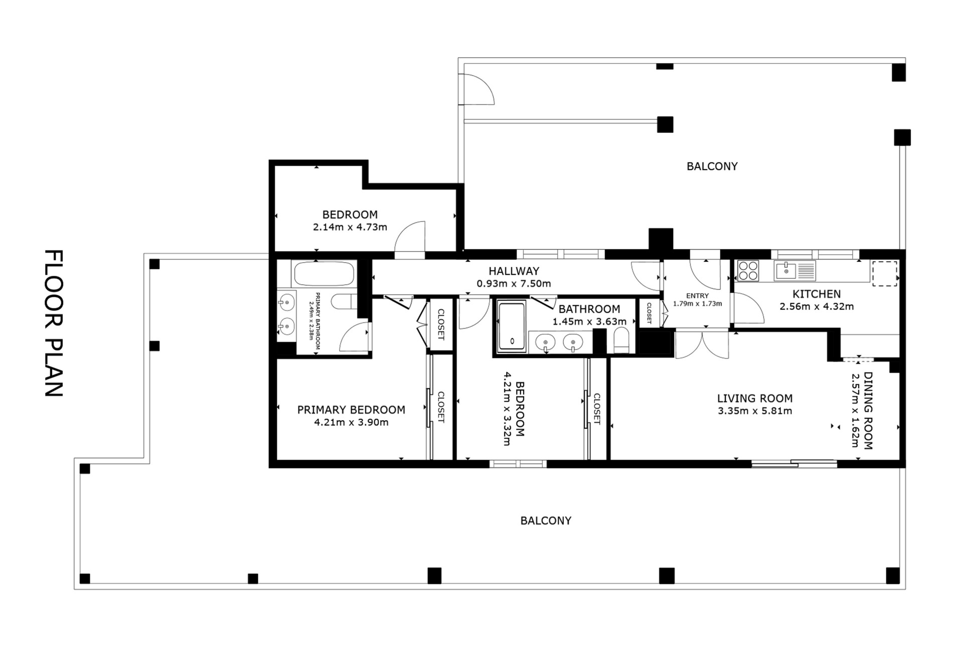
The penthouse spans a generous 105.3m² plus very spacious terraces on each side with outdoor dining areas, sun loungers, jacuzzi, outdoor shower and storage shed with laundry area, and features two double bedrooms, including a master suite with an en-suite bathroom, and a second well-appointed bathroom. The separate kitchen is fully fitted and equipped, and is semi-open to the elegant dining area, creating a harmonious flow into the spacious living room. The property is sold fully furnished, with tasteful décor and quality finishes such as marble and porcelain floors, double glazing, and fitted wardrobes. A versatile storage room, offers the potential for use as an additional single bedroom, providing flexible accommodation options. For added privacy, the penthouse floor has a private gate only accessible for the two penthouse apartments.
Residents benefit from a wealth of communal amenities, including underground parking with a lift that provides direct access to the penthouse floor, a modern gym, Turkish bath, sauna, adults’ and children’s swimming pools, and a dedicated kids’ playground. The property also includes a private parking space and a storage room, large enough for bikes, sporting gear and more, located in the secure underground car park. The community is meticulously maintained, with beautifully landscaped gardens and a welcoming atmosphere.
The penthouse's expansive terraces on both sides of the apartment offer breathtaking views of the sea, mountains, communal gardens, and pool area. These outdoor spaces are perfect for al fresco dining and relaxation, making the most of the region’s enviable climate. With air conditioning, high-speed internet, and excellent overall condition, this property promises a luxurious and comfortable lifestyle in one of the Costa del Sol’s most desirable locations.
| Ref no | ST6160 |
| Price | 395 000 € |
| Bedrooms | 2 |
| Bathrooms | 2 |
| Built size | 105 |
| Pool | COMMUNAL |
| Community fee /yr | 1536 |
| Property tax /yr | 493.87 |
| Garbage fee /yr | 81.66 |
















































