This impressive raised ground floor apartment is situated in the desirable area of Calahonda, Mijas Costa, Malaga. The property offers a blend of comfort, style, and convenience within a sought-after gated community. Residents benefit from access to several communal pool areas, a fully equipped gym, and an underground car park, ensuring a secure and enjoyable living environment.
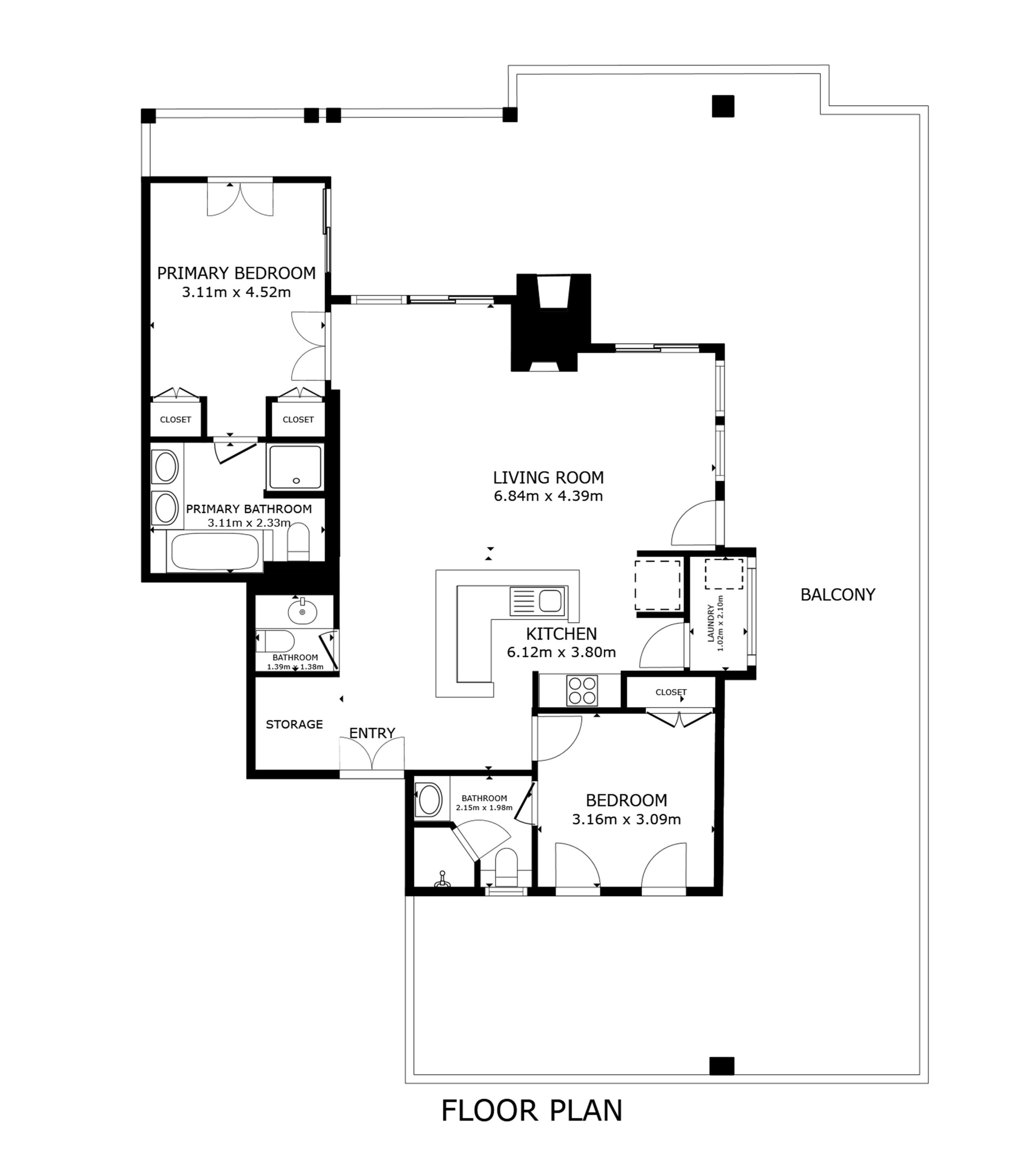
The apartment boasts a generous total area of 179.98m², with an interior space of 92.98m² complemented by an expansive wrap-around terrace measuring 87m². The layout comprises two spacious bedrooms, each featuring en-suite bathrooms for added privacy, as well as a guest WC. Both bedrooms and the living room provide direct access to the terrace, which is ideal for outdoor dining, relaxation, or entertaining, and offers partial sea views. The property is in excellent condition and benefits from optional furniture, allowing for immediate occupation or personalisation.
Key features include an open plan, fully fitted and equipped kitchen, a welcoming living room with a fireplace, and a dedicated dining area. Modern comforts are assured with air conditioning, underfloor heating in the bathrooms, double glazing, and electric blinds. Additional conveniences such as a laundry room, storage room, fitted wardrobes, and internet (Wi-Fi) are also provided.
Security and accessibility are prioritised with the inclusion of a lift, gated community entry, and communal garage facilities. The property’s mountainside setting offers a tranquil backdrop, while proximity to local amenities and the coastline ensures an excellent balance between peaceful living and convenience. This ground floor apartment represents a superb opportunity for those seeking a stylish, well-appointed home in one of Mijas Costa’s most popular locations.
| Ref no | ST6181 |
| Price | 420 000 € |
| Bedrooms | 2 |
| Bathrooms | 2 |
| Built size | 180 |
| Terrace size | 87 |
| Pool | COMMUNAL |
| Community fee /yr | 2688 |
| Property tax /yr | 620.26 |
| Garbage fee /yr | 81.66 |





























