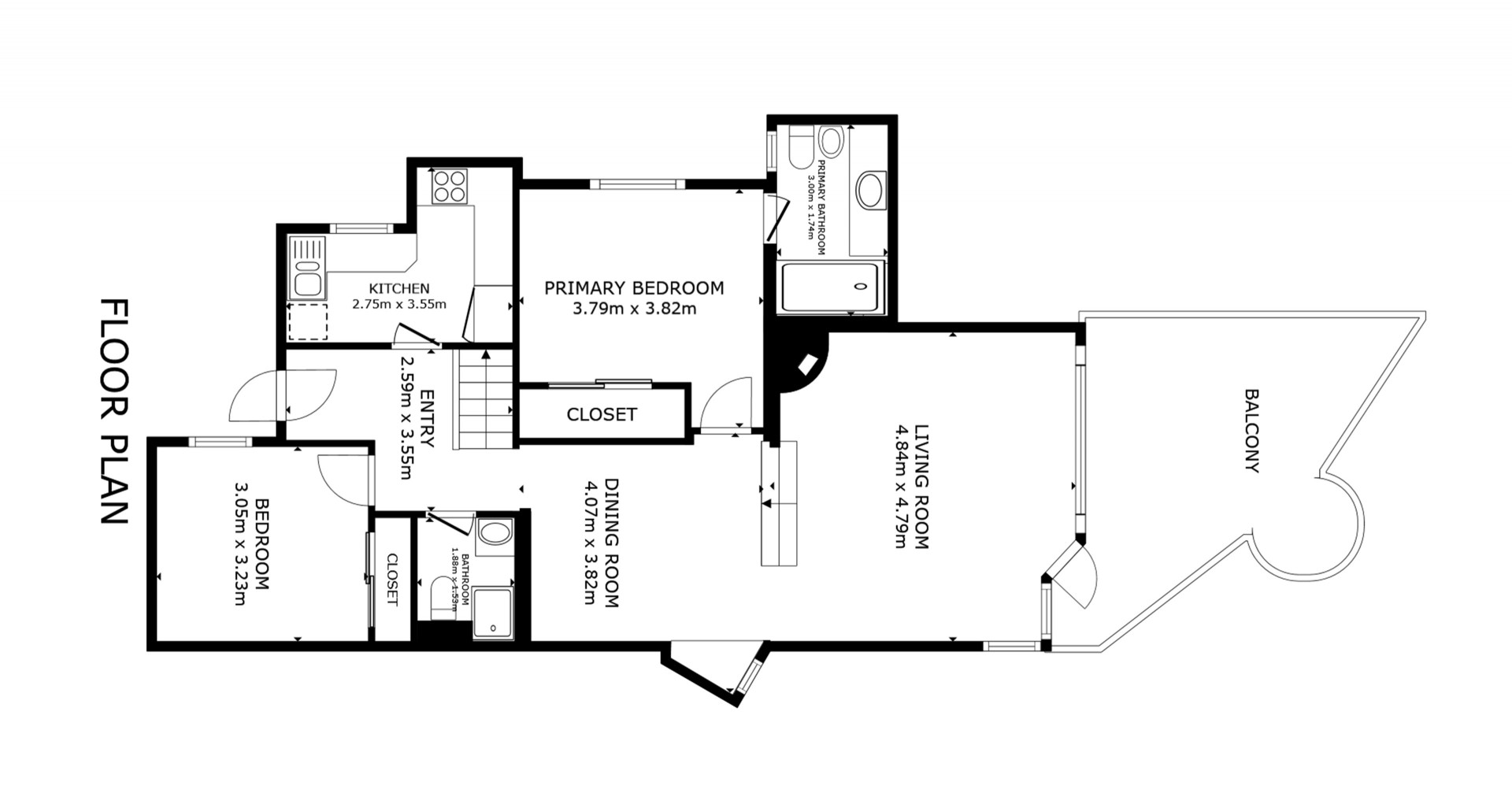
This impressive penthouse with roof terrace is situated in the highly desirable area of lower Calahonda, Mijas Costa, Malaga. The property offers a generous total built area of 147.65m², with 97.7m² dedicated to interior living space and an expansive 49.95m² of terraces, plus a spacious roof terrace with adjacent laundry room. The residence is ideally positioned within a sought-after community, renowned for its beautifully landscaped gardens and inviting communal pool area.
The penthouse comprises two well-proportioned bedrooms and two modern bathrooms, the main one featuring underfloor heating for added comfort. The property is in excellent condition and benefits from marble floors throughout, air conditioning, and a charming fireplace in the living room. The fully fitted and equipped kitchen connects to the entrance hall and next to it, we have a dedicated dining area, making it ideal for both everyday living and entertaining. Fitted wardrobes provide ample storage, while the property is partly furnished, with all furnishings included except for art and personal items.
Outdoor living is a key highlight, with a private terrace, offering delightful garden views plus a spacious entrance patio offering partial sea views. Residents enjoy access to the communal gardens and pool, creating a tranquil environment just moments from the Mediterranean coastline and there is plenty of communal parking space right outside.
Additional features include high-speed internet (Wi-Fi), proximity to local amenities such as supermarkets, bars, and restaurants, all within a ten-minute walk, and the convenience of being close to the sea and beach. Although the property does not include a private garage, its prime location and comprehensive features make it an outstanding opportunity for those seeking a stylish and comfortable home in the heart of Mijas Costa.
| Ref no | ST6202 |
| Price | 370 000 € |
| Bedrooms | 2 |
| Bathrooms | 2 |
| Built size | 148 |
| Terrace size | 50 |
| Pool | COMMUNAL |
| Community fee /yr | 2388 |
| Property tax /yr | 441.61 |
| Garbage fee /yr | 81.66 |






























